目录
载入中 ...
大楼设施
THE CENDAS 闪耀时尚的玻璃外观背后,汇聚着各种顶尖设施,贴心地迎合现代商业的各种所需。
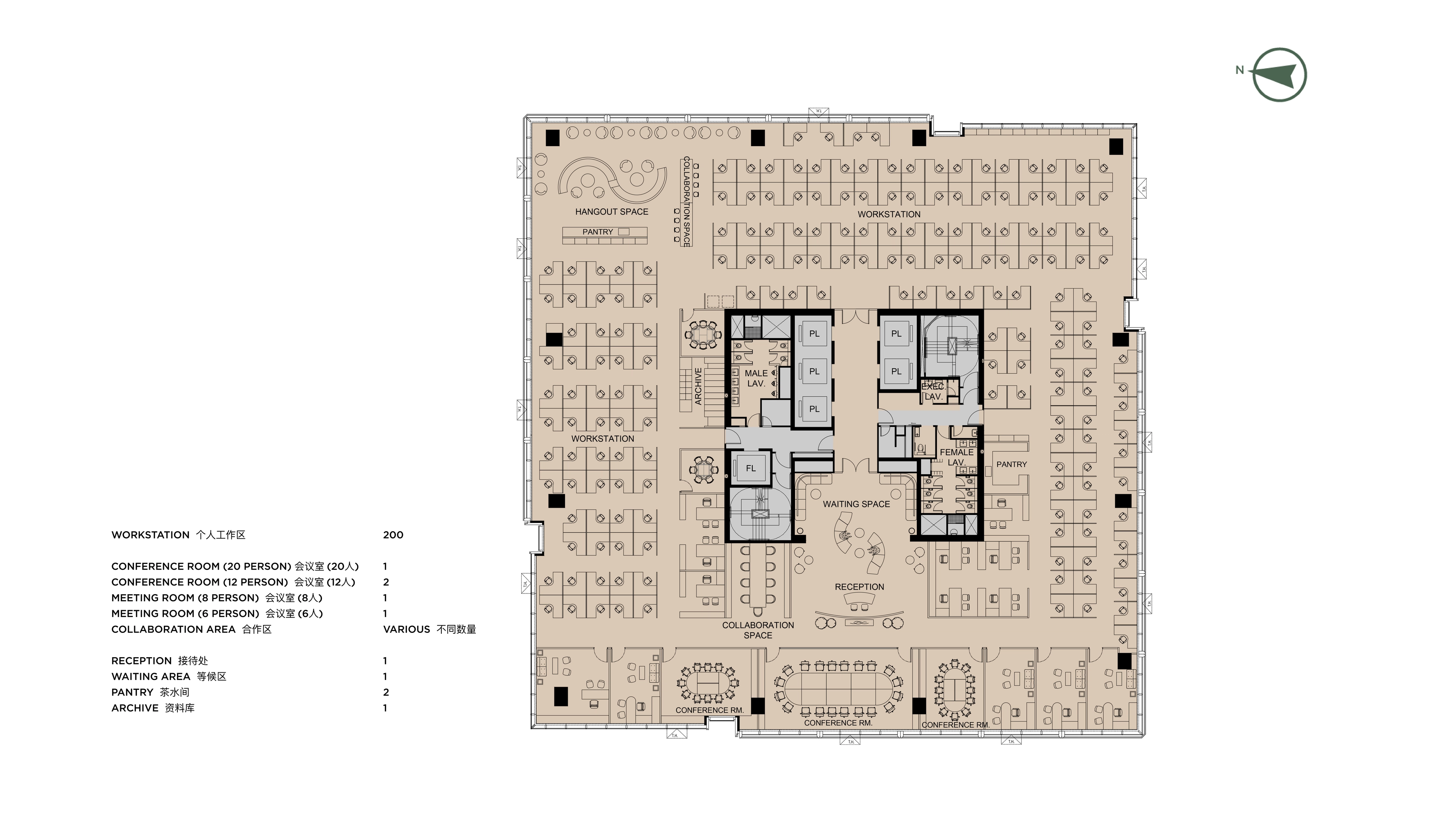
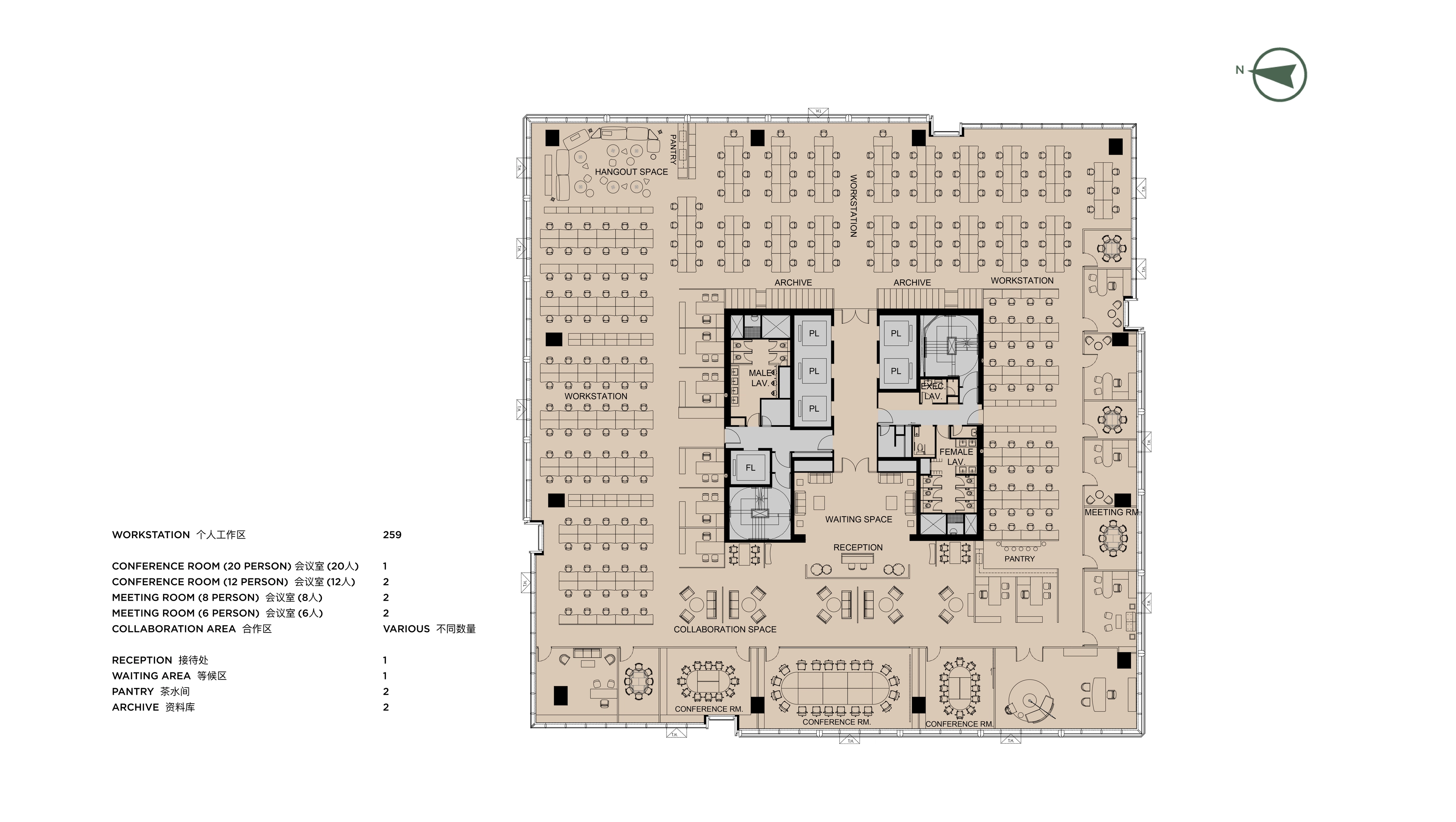
标准楼层平面图
虚拟宣传册子